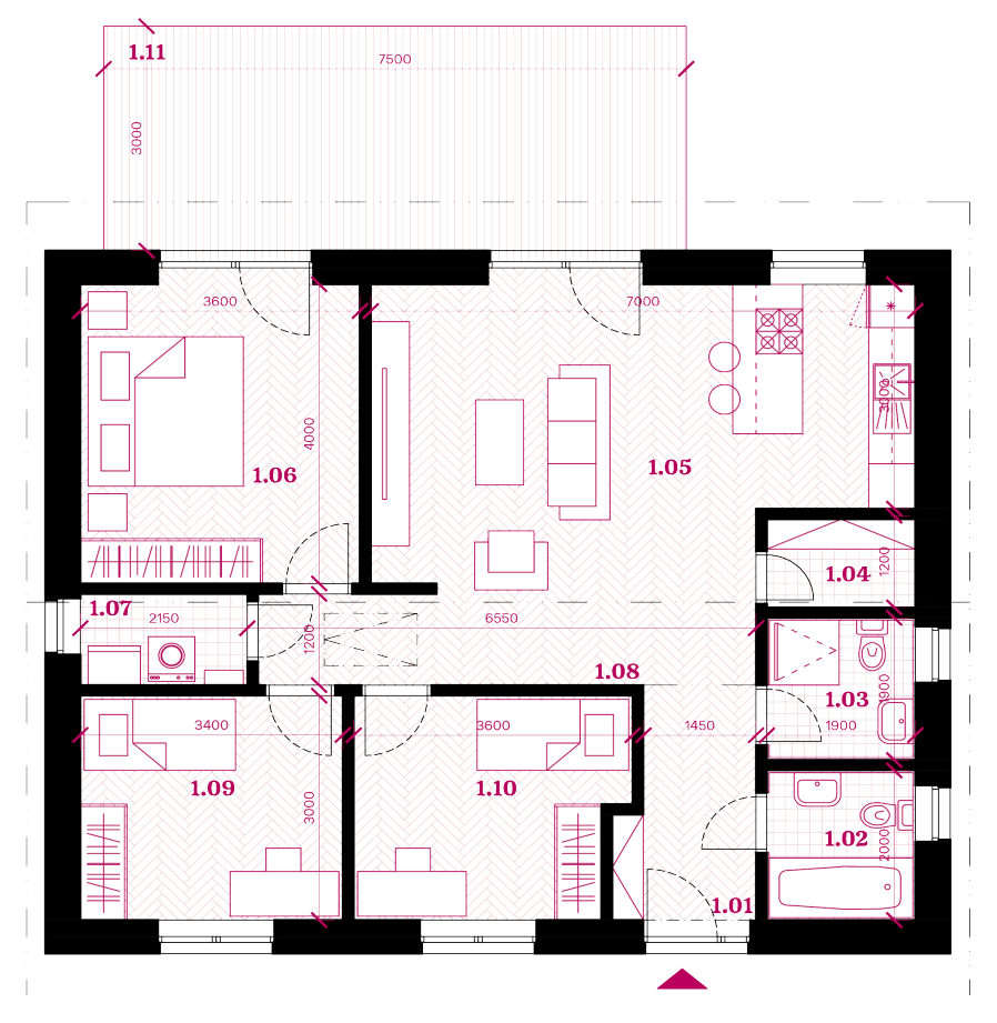
Bungalov
Dom | PO 21
| Stav | Voľný |
| Číslo | PO 21 |
| Poschodie | 1 |
| Počet izieb | 4 |
| Počet kúpeľní | 2 |
| Zastavaná plocha | 127m2 |
| Úžitková plocha | 86,48m2 |
| Terasa | 22,5m2 |
| Výmera pozemku | 575,00m2 |
| Cena | V sekcii Bývanie |
| Vstupná chodba | 5,1m2 |
| Kúpeľňa | 3,8m2 |
| Kúpeľňa | 3,6m2 |
| Komora | 2,3m2 |
| Obývacia izba/kuchyňa | 31,6m2 |
| Spálňa | 14,4m2 |
| Sklad | 2,6m2 |
| Chodba | 2,8m2 |
| Izba | 10,1m2 |
| Izba | 10,2m2 |
| Terasa | 22,50m2 |
