BUNGALOV
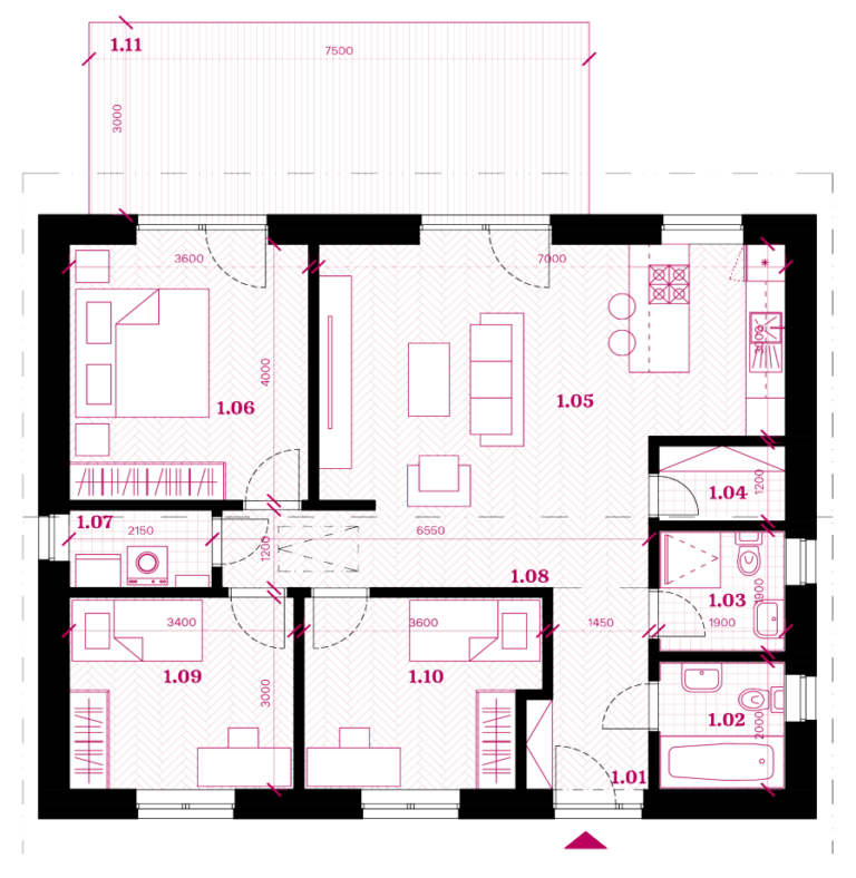
Typ domu bungalov predstavuje najčastejšiu typológiu domu vo výstavbe. Jedná sa o jednopodlažný dom so šikmou sedlovou strechou. Dispozícia je tvorená 4 obytnými miestnosťami s dvoma kúpelňami a dvoma komorami. Pri vstupe sa nachádzajú kúpelne. Obývacia izba s kuchyňou sa nachádza v centrálnej polohe domu, z ktorej je východ na terasu a záhradu cez veľké presklenné dvere. Detské izbe sú orientované vedľa seba do vstupnej časti a spálňa s výstupom do záhrady. V podkroví sa nachádza úložný priestor. K typu domu bungalov patrí aj terasa, orientovaná smerom do záhrady.
Pôdorys
TABUĽKA MIESTNOSTÍ
| 1.01 | Vstupná chodba | 5,1m2 |
| 1.02 | Kúpeľňa | 3,8m2 |
| 1.03 | Kúpeľňa | 3,6m2 |
| 1.04 | Komora | 2,3m2 |
| 1.05 | Obývacia izba/kuchyňa | 31,6m2 |
| 1.06 | Spálňa | 14,4m2 |
| 1.07 | Sklad | 2,6m2 |
| 1.08 | Chodba | 2,8m2 |
| 1.09 | Izba | 10,1m2 |
| 1.10 | Izba | 10,2m2 |
| 1.11 | Terasa | 22,50m2 |
| Úžitková plocha | 86,5m2 | |
| Spolu | 108,9m2 | |
Chcete bývať na jednom podlaží?
výber domu bungalov je pre vás správnym rozhodnutím
3D prehliadka bungalovu








